PROJEKT TECHNOLOGICZNY

Planując budowę lub adaptację lokalu dla potrzeb prowadzenia działalności gospodarczej objętej nadzorem Inspekcji Sanitarnej lub Inspekcji Weterynaryjnej, należy pamiętać o szeregu wymagań jakie są stawiane takim obiektom. Koniecznością staje się opracowanie projektu, w którym rozplanowano układ pomieszczeń oraz wskazano umiejscowienie urządzeń i wyposażenia technologicznego. Projekt musi być opracowany zgodnie z aktualnymi przepisami, a jego poprawność potwierdzona przez właściwy organ lub uprawnionego rzeczoznawcę.

W szczególności projekt technologiczny powinien być opracowywany dla:

  • lokali gastronomicznych
  • obiektów służby zdrowia
  • zakładów fryzjerskich, salonów masażu, gabinetów kosmetycznych
  • hurtowni i sklepów spożywczych
  • zakładów przetwórstwa i produkcji żywności
  • zakładów przetwórstwa produktów pochodzenia zwierzęcego
  • aptek
  • żłobków, przedszkoli, klubów dziecięcych

CO W PROJEKCIE?

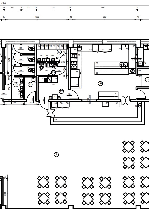
Projekt technologiczny powinien składać się z części opisowej i rysunkowej.

Część graficzna to rzut pomieszczeń lokalu wykonany w skali 1:50 lub 1:100, na którym zostały oznaczone poszczególne pomieszczenia, ich funkcja, powierzchnia, urządzenia sanitarne, wyposażenie technologiczne, a w przypadku większych lub bardziej skomplikowanych obiektów również drogi technologiczne, stanowiska pracy, śluzy, podział na strefy bezpieczeństwa mikrobiologicznego, itp.

W części opisowej projekt zawiera dane obiektu i inwestora, aktualne podstawy prawne na podstawie których sporządzono opracowanie, określenie rodzaju i program działalności, określenie wielkości i struktury planowanego zatrudnienia, opis procesów technologicznych w planowanym zakładzie, wytyczne budowlane i instalacyjne szczególne dla danej działalności, wytyczne do projektowania systemu jakości oraz wykaz wyposażenia technologicznego oznaczonego w części graficznej. W przypadku zakładów produkcyjnych również opis zabezpieczeń dla poszczególnych stref bezpieczeństwa mikrobiologicznego oraz określenie systemu dostawy mediów i usuwania odpadów.